Quadrilocale in vendita

Latina, Via Custoza
€ 315.000
4 locali 4 locali
137 Mq 137 Mq
2 bagni 2 bagni

Quadrilocale in vendita

Latina, Via Custoza

Descrizione annuncio

VIA CUSTOZA

Appartamento situato in pieno centro città, caratterizzato da ampi e luminosi spazi interni e da un grande terrazzo collegato a tutti gli ambienti dell’immobile, oltre a comodo box auto annesso.

La posizione strategica consente di raggiungere facilmente tutti i principali servizi di uso quotidiano e i locali più frequentati della zona, rendendo questa soluzione ideale per famiglie o coppie alla ricerca di comfort e vivibilità degli spazi esterni.

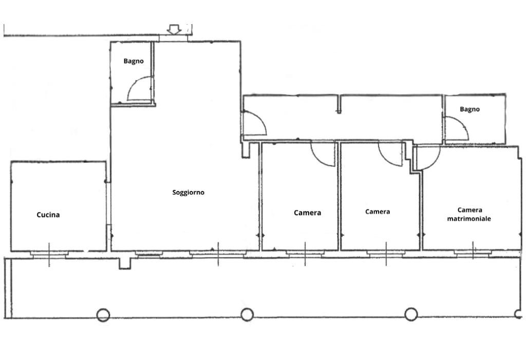
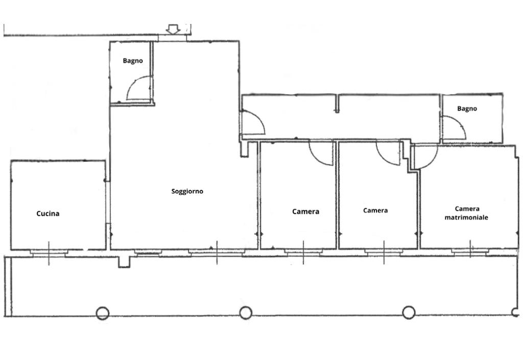
ZONA GIORNO
L’ingresso si apre direttamente su un’ampia e luminosa zona living, perfetta per momenti di relax e convivialità. La cucina è abitabile e separata, dotata di una pratica porta con ante scorrevoli che garantisce funzionalità e riservatezza.
Completa la zona giorno un bagno finestrato con doccia.

ZONA NOTTE
La zona notte è composta da tre camere da letto: due spaziose matrimoniali e una camera singola attualmente adibita a studio, ideale anche come stanza per ospiti o smart working.
È presente inoltre un secondo bagno con vasca.

Elemento distintivo dell’immobile è il magnifico terrazzo di circa 40 mq, accessibile da tutti gli ambienti: uno spazio esclusivo perfetto per pranzi e cene all’aperto, momenti di relax e convivialità in ogni stagione.

Mostra tutto

Nelle vicinanze

Trasporto pubblico Trasporto pubblico
Trasporto pubblico
90 m
Norma - Sermoneta - Bassiano
Norma - Sermoneta - Bassiano
980 m
Ricariche auto elettriche Ricariche auto elettriche
EnelX Latina Torre La Felce
1,4 Km
Scuole Scuole
Scuola Secondaria di I grado "Giovanni Cena"
280 m
Università La Sapienza - Facoltà di Ingegneria
300 m
Scuola Primaria "Gionchetto"
360 m
Università La Sapienza - Facoltà di Economia
370 m
Scuola Primaria "Daniele"
390 m
Farmacia Farmacia
Farina Salvatore
240 m
Farmacia Santa Maria
580 m
Farmacia Travagliati
850 m
Farmacia Fontana
870 m
Giannantonio
1,7 Km
Ospedali Ospedali
Pronto Soccorso Ospedale "Santa Maria Goretti"
1,4 Km
Clinica San Marco
1,4 Km
Ospedale Santa Maria Goretti
1,5 Km
Supermercati Supermercati
Eurospin
280 m
Risparmio Casa
320 m
Emme Più
560 m
Conad
580 m
In's Mercato
600 m
Negozi Negozi
Alimentari Picozza
420 m
La Luna Nuova
420 m
Susi Store
1,3 Km
Alimentari da Manuel e Silvia
1,3 Km
Alimentari Biondi Patrizia
1,5 Km
Bar Bar
Bar Poeta
860 m
Bar Bianca
950 m
Break Time
1,2 Km
Bar
1,2 Km
Bar...bapapà
1,7 Km
Ristoranti Ristoranti
La Grande Muraglia
820 m
Al Parco
870 m
Ristorante Impero
880 m
Ristorante Pizzeria L'Arco
890 m
Lo Zodiaco
1,0 Km
Mostra tutto

Caratteristiche

Rif.:
61201543
Piano:
4 di 5 con ascensore (Piano alto)
Box:
1
Terrazzi:
1
Camere da letto:
3
Arredamento:
Parziale
Mostra tutto
Prezzo Prezzo
€ 315.000
Rata mutuo Rata mutuo
€ 1.496 / mese
Spese annue Spese annue
€ 840
Proponi il tuo prezzoProponi il tuo prezzo
Immobile valutato con T·Valuta

Classe Energetica

E
E
E
E
E
E
E
E
E
EP invernale del fabbricato:
EP estiva del fabbricato:
Anno di costruzione:
2001
Riscaldamento:
Autonomo
Tipo impianto:
A radiatori
Tipo alimentazione:
Metano

Ti interessa visionare l'immobile?

Fissa un appuntamento  Fissa un appuntamento

Richiedi informazioni

Clicca su Leggi per aprire l'informativa
* Questi campi sono obbligatori

Calcola il tuo mutuo

Semplice e senza impegno
Anticipo

( % )
Mutuo

( % )

pochi semplici passi

inserisci i tuoi dati
Questionario completato
Grazie per aver richiesto un appuntamento senza impegno con un nostro Consulente del Credito e Assicurativo.

Hai inserito correttamente tutti i dati necessari e a breve riceverai una e-mail con un link da convalidare per inviare i tuoi dati.
Affiliato
18 Dicembre Srl
Viale XVIII Dicembre, 41 04100 Latina (LT)

Il nostro staff


  • Umberto Prosperi
    Affiliato
Viale XVIII Dicembre, 41 04100 Latina (LT)
Zona: Latina Nord
Mostra su mappa
Orari: Da Lunedì a Venerdì 9:00 - 13:00 15.30 - 19.30 Sabato 9:30 - 13:00
Affiliato
18 Dicembre Srl
Viale XVIII Dicembre, 41 04100 Latina (LT)

2026 Tecnocasa Franchising S.p.A. - P. IVA 08365160152 - Via Monte Bianco 60/A 20089 Rozzano (MI). Ogni agenzia ha un proprio titolare ed è autonoma. Privacy policy | Policy utilizzo | Cookie policy